Y様style『好きなテイスト理想の暮らし』戸建てリノベーション
所在地
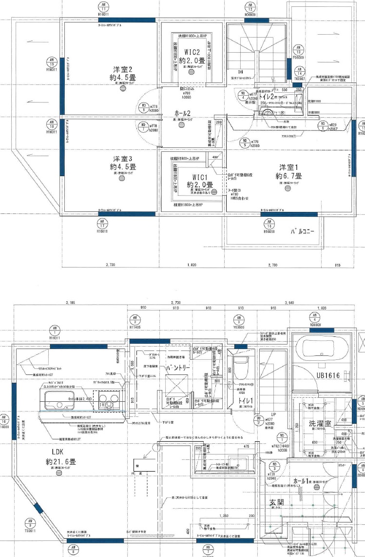
神奈川県横浜市保土ヶ谷区
タイプ
戸建
リノベ価格(税込)
1,900万円
間取り
4LDK → 3SLDK
面積
92.73㎡
Point
こだわりのポイント
Before
After
お気軽にお問い合わせください!
Warning: Undefined array key "text" in /home/xb067821/onestop-r.com/public_html/wp-content/themes/ippo/components/inquiry.php on line 18
その他の事例













