Y様Style。『my life』
所在地
神奈川県横須賀市
タイプ
マンション
リノベ価格(税込)
1,050万円
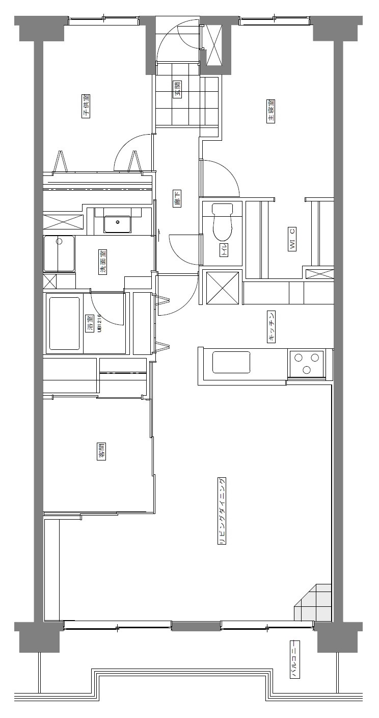
間取り
4LDK → 3LDK
面積
72.75㎡
Point
こだわりのポイント
Before
After
お気軽にお問い合わせください!
Warning: Undefined array key "text" in /home/xb067821/onestop-r.com/public_html/wp-content/themes/ippo/components/inquiry.php on line 18
その他の事例













