T様Style『想い出の実家を無垢リノベーション』

所在地

神奈川県横浜市戸塚区

タイプ

マンション

リノベ価格(税込)

970万円

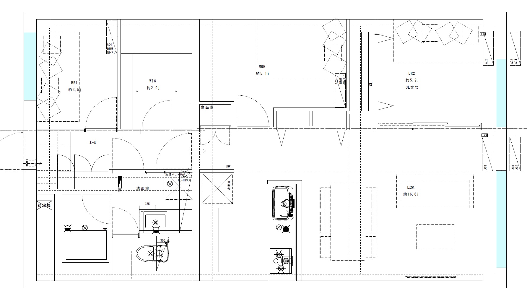
間取り

3LDK → 3SLDK

面積

69.25㎡

Point

こだわりのポイント

想い出の詰まったご実家を無垢の温かみを感じる暮らしにリノベーション。
ご結婚を契機に新居としてT様が選んだ暮らしは「心も暮らしも暖かくなる」
そんな想いの詰まった「実家リノベーション」の暮らしでした。
国産の無垢材やレッドシダーの羽目板。
その他にもT様の拘りが詰まった「世界に一つだけの暮らし」の誕生です!

無垢フローリングは北海道産の「国産ナラ」を採用
壁にも存在感のある「レッドシダー」をパネリング
開放感もあり収納も豊富な使いやすい間取り設計

Before

After

お気軽にお問い合わせください!


Warning: Undefined array key "text" in /home/xb067821/onestop-r.com/public_html/wp-content/themes/ippo/components/inquiry.php on line 18

その他の事例