K様Style。『収納力』

所在地

神奈川県鎌倉市

タイプ

マンション

リノベ価格(税込)

920万円

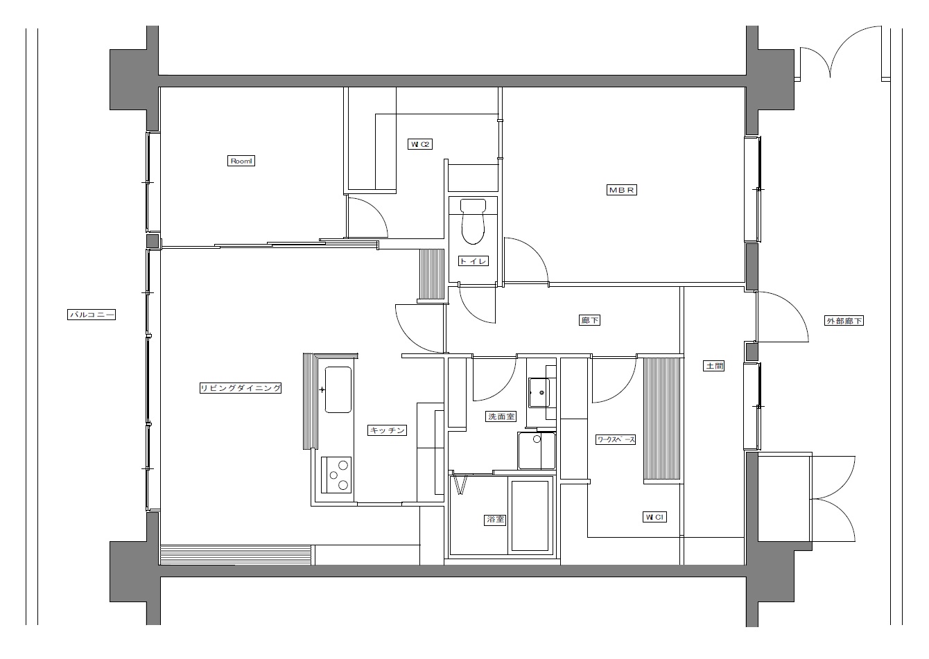
間取り

3LDK → 2SLDK

面積

82.00㎡

Point

こだわりのポイント

子供の成長や家族構成の変化なども見据えたK様Styleのリノベーション。
もっとも重視したのは「収納力」。
広いパントリーやワークスペースも兼ねた納戸。
趣味の道具やお子様の三輪車や自転車を置くことも想定した土間。
暮らしをいつまでも快適に楽しむためのアイディアが詰まったリノベーションです!

ありきたりな住まいに自分を合わせるのではなく、「自分自身」に暮らしを合わせる(創る)。
中古住宅購入+リノベーション。

床には天然無垢材「国産ニレ」を採用
82㎡の収納力たっぷりな2SLDK
土間やワークスペース等、使い勝手も充実

Before

After

お気軽にお問い合わせください!


Warning: Undefined array key "text" in /home/xb067821/onestop-r.com/public_html/wp-content/themes/ippo/components/inquiry.php on line 18

その他の事例